2025 Prolite Evasion
$ 39,999
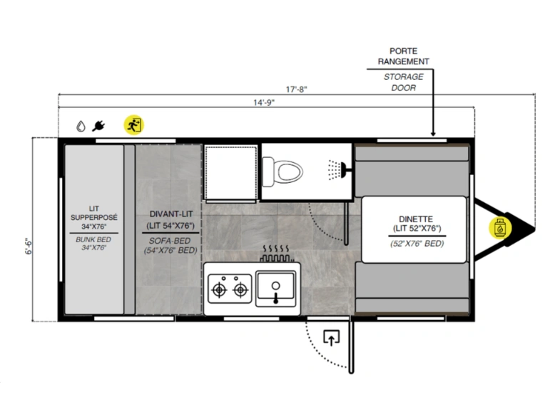
Specifications
- Condition: New
- Manufacturer: Prolite
- Model: Evasion
- Year: 2025
- Type: Recreational vehicle
- Category: Camping trailers
- Stock #: 5065
- VIN: 2L9VF5102SJ110145
- Bunk beds: Yes
- Exterior Finish: Fiberglass
- Interior Color: BLANCHE












